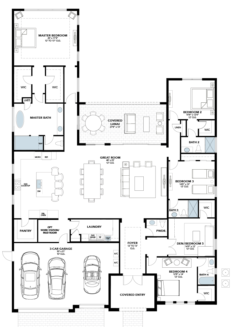
Barbados V
One-Story
5 Bedrooms, 4.5 Baths, 3-Car Garage
| Living A/C Area | 3,786 A/C Sq. Ft. |
| Covered Entry | 161 Sq. Ft. |
| Covered Lanai | 360 Sq. Ft. |
| 3-Car Garage | 692 Sq. Ft. |
| Total | 4,999 Total Sq. Ft. |



Barbados V
These estate homes are offered in Coastal Modern, Florida Contemporary, and Modern architectural styles.